85416 Langenbach

Alles was das Herz begehrt! Luxuriöses 4-Zimmer-Penthouse mit umlaufender Dachterrasse

Kaufpreis

950.000

Wohnfläche

133,4 m²

3,0

Schlafzimmer

1,0

Badezimmer

133,4 m²

Wohnfläche

Objektinformationen

Objektnr.:596
Wohnfläche.:133,4 m²
Nutzfläche:4,0 m²
Zimmer gesamt:4,0
Schlafzimmer:3,0
Badezimmer:1,0
Stellplätze:1
Etage:2
Baujahr:2024
Zustand:erstbezug
Verfügbar ab:kurzfristig
Kaufpreis:€ 950.000,00
Käuferprovision:2,38 % inkl. MwSt.

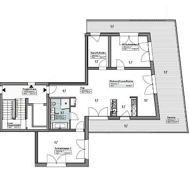
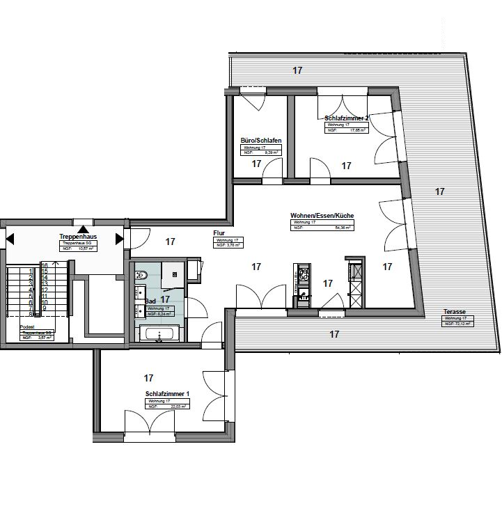
Grundrisse

Energieausweis

Energieausweis:Bedarf
Energieausweis gültig bis:10.10.2034
Baujahr:2024
wesentlicher Energieträger:Erdwärme
Energieeffizienzklasse:A_PLUS
Energieausweis herunterladen

Objektbeschreibung

Bei diesem Angebot handelt es sich um eine Penthouse-Wohnung der Extraklasse zum Erstbezug. Die Einheit befindet sich im 2. Obergeschoss eines neugebauten Mehrfamilienhauses mit insgesamt 18 Wohneinheiten. Auf ca. 133 m² Wohnfläche stehen Ihnen ein geräumiger Wohn-, Ess- und Kochbereich, 3 Schlafzimmer, ein Badezimmer und eine umlaufende, ca. 72 m² große Dachterrasse, die anteilig, zu 25 %, in der ausgewiesenen Wohnfläche berücksichtigt ist zur Verfügung. Die Einheit kann sowohl über das geräumige Treppenhaus als auch bequem über den großen Personenaufzug erreicht werden und ist durchgehend barrierefrei gestaltet.

Ausstattung

Die Ausstattung des Angebotes lässt keine Wünsche offen: Das gesamte Dachgeschoss ist in umweltfreundlicher Holzbauweise mit Holzfaserdämmung errichtet und mit einer Fichten-Außenbekleidung versehen und trägt ein Gründach. Bei den Innenwänden handelt es sich um Kalksandsteinmauerwerk mit hervorragender Schalldämmung. Die Innentüren sind von massiver Premiumqualität einer renommierten Holzmanufaktur und gelten als besonders schalldämmend. Die Wohnungseingangstüren mit Eichenfurnier entsprechen höchsten Sicherheits- und Schallschutzstandards und können sowohl mit einem Schlüssel als auch mit einem Transponder bedient werden. Das Sicherheitskonzept wird mit einer automatischen Türverriegelung und einer brandmodernen Videosprechanalage verstärkt. Bei den Bodenbelägen handelt es sich um hochwertige Eichenholzdielen. Die Badezimmer verfügen über moderne, großformatige, graue Feinsteinzeug-Fliesen und eine Sanitärausstattung von Villeroy & Boch, Dornbracht-Armaturen, riesige Spiegelschränke mit integrierter Beleuchtung sowie hochwertige Unterschränke in Holzoptik. und eine bodengleiche, barrierefreie Dusche sowie eine moderne Badewanne. Die vorhandene Einbauküche ist im Kaufpreis enthalten und verfügt über moderne AEG-Elektrogeräte. Die gesamte Einheit ist mit einer dezentralen Be- und Entlüftungsanlage mit Wärmerückgewinnung ausgestattet und wird über eine Fußbodenheizung in allen Räumen beheizt. Die bodentiefen und barrierefreien Holz-/Alu-Fenster sind dreifachverglast und verfügen über elektrische Raffstores. Besonders hervorzuheben ist die Energieeffizienz des Gebäudes mit einer Energieeffizienzklasse A+. Bei der Heizungsanlage handelt es sich um eine Wärmepumpe - Erdwärme. Diese kann durch eine Gasheizung unterstützt werden.

Lage

Die Gemeinde Langenbach liegt mittig zwischen der Kreisstadt Freising und der Stadt Moosburg an der Isar. Sämtliche Dinge des täglichen Bedarfs sind fußläufig in wenigen Minuten erreichbar. Langenbach verfügt über eine ausgezeichnete Verkehrsinfrastruktur. Der Bahnanschluss gehört zum MVV-Gebiet. Die BAB 92 ist schnell zu erreichen. Grundschule und Kitas sind im Ort vorhanden. Weiterführende Schulen befinden sich in Freising oder Moosburg. Selbstverständlich ist hier abschließend noch die Nähe zum Flughafen München zu erwähnen (in 20 min. erreicht) und selbstverständlich der hohe Freizeitwert der Gemeinde mit diversen Möglichkeiten des Sports und anderer Aktivitäten. Alles in allem findet man hier eine ruhige und familienfreundliche Umgebung vor.