Für Sonnenanbeter! Lichtdurchflutete 3-Zimmer-Eigentumswohnung mit 2 Balkonen im Freisinger Norden
440.000 €
76,1 m²
Schlafzimmer
Badezimmer
Wohnfläche
Objektinformationen
| Objektnr.: | 563 |
| Wohnfläche.: | 76,1 m² |
| Nutzfläche: | 5,0 m² |
| Zimmer gesamt: | 3,0 |
| Schlafzimmer: | 2,0 |
| Badezimmer: | 1,0 |
| Stellplätze: | 1 |
| Etage: | 1 |
| Heizungsart: | Fernheizung |
| Befeuerungsart: | Fernwärme |
| Baujahr: | 2000 |
| Zustand: | gepflegt |
| Kaufpreis: | € 440.000,00 |
| Käuferprovision: | 1,785 % inkl. MwSt. |
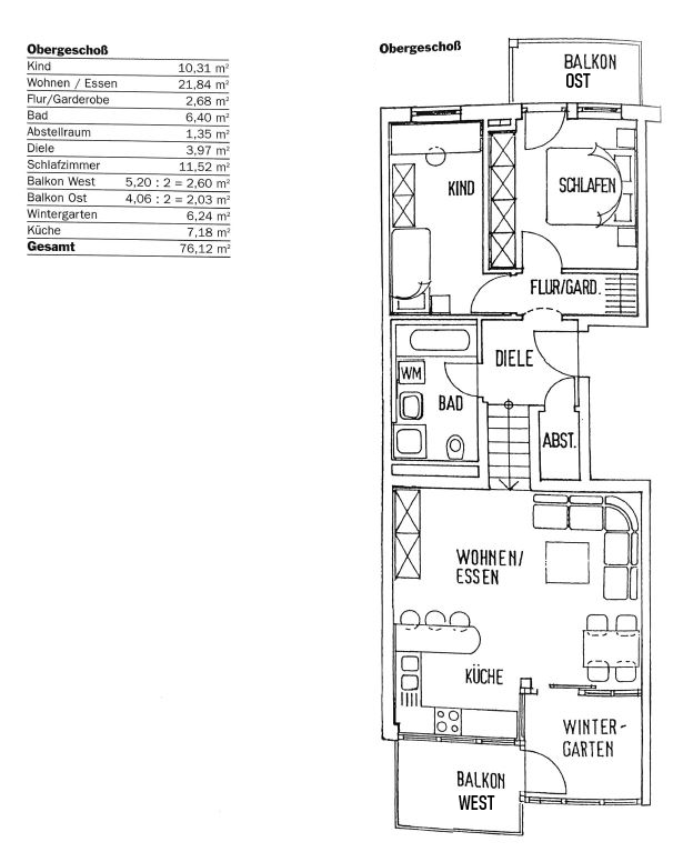
Grundrisse
Energieausweis
| Energieausweis: | Verbrauch |
| Energieausweis gültig bis: | 14.03.2028 |
| mit Warmwasser: | nein |
| Baujahr: | 2000 |
| wesentlicher Energieträger: | Fernwärme |
| Energieeffizienzklasse: | D |
Objektbeschreibung
Bei diesem Angebot handelt es sich um eine ansprechende 3-Zimmer-Eigentumswohnung mit einem Ost- und einem West-Balkon - perfekt für Sonnenanbeter. Die Einheit befindet sich in einem gepflegten Mehrfamilienhaus aus dem Jahr 2000, gelegen im beliebten Freisinger Norden und teilt sich den Hauseingang mit 5 weiteren Parteien. Über das Treppenhaus erreichen Sie die Wohnung im 1. Obergeschoss. Beim Betreten befinden Sie sich in einer Diele, die die einzelnen Bereiche separiert. Von hier aus ist linker Hand ein kleiner Abstellraum gelegen. Rechter Hand befinden sich die beiden Schlafräume, mit einem kleinen Vorbereich, der sich hervorragend als Garderobenbereich eignet. Von dem größeren der beiden Zimmer ist ein Zugang auf den Ost-Balkon, für ein sonniges Frühstück im Freien, vorhanden. Von der Diele gelangen Sie gerade aus in das geräumige Badezimmer mit Badewanne, Dusche und Waschmaschinenanschluss. Daran angrenzend ist über ein paar Treppenstufen, der großzügige, lichtdurchflutete Wohn-, Ess- und Kochbereich mit verglastem Wintergarten zu erreichen. Von hier aus haben Sie außerdem Zugang zu dem gemütlichen West-Balkon mit traumhaftem Blick ins Grüne, Richtung Schafhof. Der Platz für die wohl schönsten Sonnenuntergänge Freisings!
Ausstattung
Alle Wohn- und Schlafräume verfügen über gepflegtes Stäbchen-Parkett, Eiche. Badezimmer, Küche und Diele sind weiß gefliest. Die Küche ist mit einer modernen, Einbauküche inkl. Elektrogeräten ausgestattet. Diese ist im Kaufpreis enthalten.
Lage
Die Wohnung ist im ruhigen und grünen Freisinger Norden gelegen. Kindergarten und Spielplatz befinden sich in unmittelbarer Nähe. Die Grundschule und alle weiterführenden Schulen sind - ebenso wie alle Einkaufsmöglichkeiten - in wenigen Gehminuten zu erreichen. Ins Stadtzentrum von Freising benötigen Sie zu Fuß etwa 15 Minuten und zum Bahnhof (S1) ca. 20 Minuten. Eine Bushaltestelle für den Stadtbus ist praktisch vor der Türe. Ebenso bietet Ihnen die Lage des Objektes kurze Wege zu zahlreichen Naherholungsgebieten in traumhafter Natur, wie beispielsweise den Freisinger Schafhof, der in ca. 5 Gehminuten zu erreichen ist sowie den Wieswald oder die Plantage. Freising gilt mit seinen knapp 50.000 Einwohnern als sehr beliebter sowie lebenswerter Wohnort und kann auf vielen Ebenen überzeugen: eine sehr gute Lebensqualität, ein zukunftssicherer Wirtschaftsstandort, die Hochschule, der Dom und die Nähe zur Landeshauptstadt München und dem Flughafen. Vom Bahnhof aus kommt man mit der Regionalbahn oder der S-Bahn in die Landeshauptstadt München sowie nach Landshut und Regensburg. Durch den nahen Flughafen MUC II, dem nahen Autobahnanschluss Freising-Mitte, direkt an der Staatsstraße 2350 und die Bahnlinie München-Landshut-Regensburg ist Freising infrastrukturell hervorragend angebunden.
Sonstiges
Zur Wohnung gehört ein Duplex-Tiefgaragen-Stellplatz, der für einen Kaufpreis in Höhe von € 15.000,00 zu erwerben ist. Weiter gehört zur Wohnung ein geräumiges Kellerabteil. Im Kellergeschoss befindet sich außerdem ein gemeinschaftlicher Wasch- und Trockenraum. Hier verfügt die Wohnung ebenfalls über einen eigenen Anschluss. Die Umstellung der Heizung von Gas auf Fernwärme erfolgte im vergangenen Jahr. Der vorhandene Energieausweis bezieht sich noch auf die Befeuerung durch Gas.











