Ruhig und gediegen! Gepflegte Doppelhaushälfte auf schönem Grundstück
520.000 €
143,8 m²
Schlafzimmer
Badezimmer
Wohnfläche
Grundstückfläche
Objektinformationen
| Objektnr.: | 575 |
| Wohnfläche.: | 143,8 m² |
| Nutzfläche: | 73,7 m² |
| Grundstücksfläche: | 315,0 m² |
| Zimmer gesamt: | 4,5 |
| Schlafzimmer: | 3,0 |
| Badezimmer: | 1,0 |
| Stellplätze: | 1 |
| Heizungsart: | Zentralheizung |
| Befeuerungsart: | Gas |
| Baujahr: | 1993 |
| Zustand: | gepflegt |
| Verfügbar ab: | kurzfristig |
| Kaufpreis: | € 520.000,00 |
| Käuferprovision: | 2,38 % inkl. MwSt. |
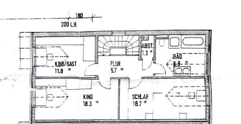
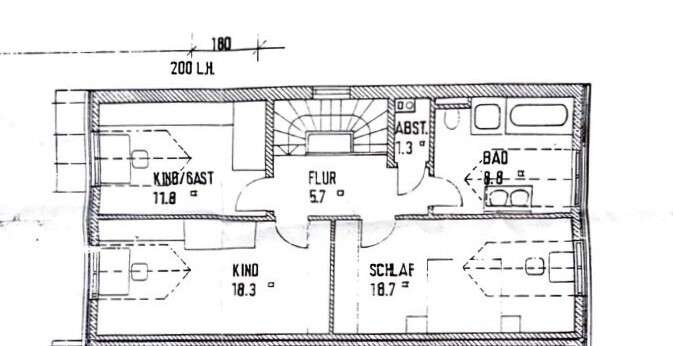
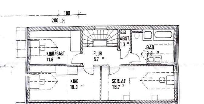
Grundrisse
Energieausweis
| Energieausweis: | Verbrauch |
| Energieausweis gültig bis: | 24.09.2035 |
| mit Warmwasser: | nein |
| Baujahr: | 1993 |
| wesentlicher Energieträger: | Gas |
| Energieeffizienzklasse: | F |
Objektbeschreibung
Die angebotenen Doppelhaushälfte befindet sich in Au in der Hallertau am Ende einer ruhigen Sackgasse. Beim Betreten des Hauses befinden Sie sich in einer Diele, die über einen Garderobenbereich und zusätzlichen Stauraum verfügt. Rechter Hand ist das Gäste WC. Zur Linken gelangen Sie in die abgetrennte Küche mit Einbauküche. Weiter geht es zu dem Essbereich und dem lichtdurchfluteten Wohnbereich mit Glasfront und verglastem Süd-West-Erker. Von hier aus haben Sie Zugang auf die gemütliche, teilüberdachte Terrasse und den schön angelegten Garten, ebenfalls nach Süd-West ausgerichtet. Zurück im Objekt werden über das Treppenhaus die weiteren Etagen erschlossen. Im Obergeschoss stehen Ihnen 3 großzügige Schlafräume, ein Tageslichtbadezimmer mit Dusche und Wanne sowie ein Abstellraum zur Verfügung. Der darüberliegende Speicher ist zwar ausgebaut und mit einem Heizkörper ausgestattet, allerdings nur mit einer Auszugtreppe zu erreichen. Das Objekt ist voll unterkellert und bietet dadurch reichlich Stauraum. Im Kellergeschoss stehen Ihnen ein geräumiger, beheizter und gut belichteter Hobbyraum, 1 Stauraum, der Heizungsraum sowie ein Hauswirtschaftsraum mit Waschmaschinenanschluss und Trockner zur Verfügung. Außerdem ist eine Einzelgarage in der Zufahrt dem Objekt zugewiesen. Die Fläche nörd-östlich des Objektes ist nicht als Bauland ausgewiesen, sodass sich hier ein traumhafter, unverbaubarer Blick ins Grüne ergibt.
Ausstattung
Die Immobilie wurde ursprünglich in 1994 in Ziegelmassivbauweise errichtet und befindet sich in einem gepflegten Zustand. Sie verfügt über eine Gaszentralheizung und zweifach isolierverglaste Holzfenster aus dem Baujahr. In Wohn- und Essbereich ist massives Eichenparkett verlegt. Küche und Eingangsbereich sind gefliest. Das Treppenhaus sowie die Dielen sind mit Marmorboden versehen. Das Badezimmer verfügt über zeitlose, weiße Fliesen. In den Schlafzimmern ist zum Teil Teppichboden, zum Teil Laminat verlegt. Die funktionale Einbauküche inkl. Elektrogeräten ist im Kaufpreis vorhanden. Das Objekt ist derzeit von den Eigentümern genutzt und ab Anfang / Frühjahr 2026 zum Selbstbezug verfügbar.
Lage
Die Doppelhaushälfte liegt in einer ruhigen, gewachsenen Wohnlage in Au in der Hallertau in einer reinen Anliegerstraße und verbindet ländliche Atmosphäre mit einer alltagstauglichen Nähe zu wichtigen Einrichtungen. Die Umgebung ist geprägt von viel Grün, einer freundlichen Nachbarschaft und kurzen Wegen, was ein entspanntes und zugleich praktisches Wohngefühl schafft. Der Markt Au profitiert von seiner Lage im wirtschaftlich stabilen Landkreis Freising. Die Nähe zu Freising, den Unternehmen der Hallertau und den Technologie- und Forschungsstandorten der Metropolregion München sorgt für solide Perspektiven und eine beständige regionale Entwicklung. Im Ort finden sich Einkaufsmöglichkeiten, medizinische Versorgung, Kinderbetreuung sowie eine Gesamtschule in angenehmer Erreichbarkeit. Sportvereine, Spielplätze, Rad- und Wanderwege sowie die charakteristische Hügellandschaft bieten vielfältige Freizeit- und Erholungsmöglichkeiten. Die Verkehrsanbindung ist gut: Buslinien verbinden den Ort mit Freising, Mainburg und Moosburg, von wo aus Zugverbindungen nach München, Landshut und Regensburg bestehen. Über die B301 sowie die Autobahnen A92 und A9 sind umliegende Städte und der Flughafen München schnell erreichbar. So entsteht ein Standort, der naturnahe Wohnqualität, eine verlässliche Infrastruktur und gute regionale Anbindungen harmonisch vereint.






















