Sichtbar, zentral, erfolgreich! Attraktive Gewerbefläche in 1-A Lage der Freising Innenstadt
3.480 €
87,0 m²
Objektinformationen
| Objektnr.: | 597 |
| Gesamtfläche: | 87,0 m² |
| Befeuerungsart: | Gas |
| Baujahr: | 1960 |
| Zustand: | gepflegt |
| Verfügbar ab: | kurzfristig |
| Kaltmiete: | € 3.480,00 |
| Warmmiete: | € 3.930,00 |
| Nebenkosten: | € 450,00 |
| Provision: | 2 Netto-Kaltmieten zzgl. MwSt. |
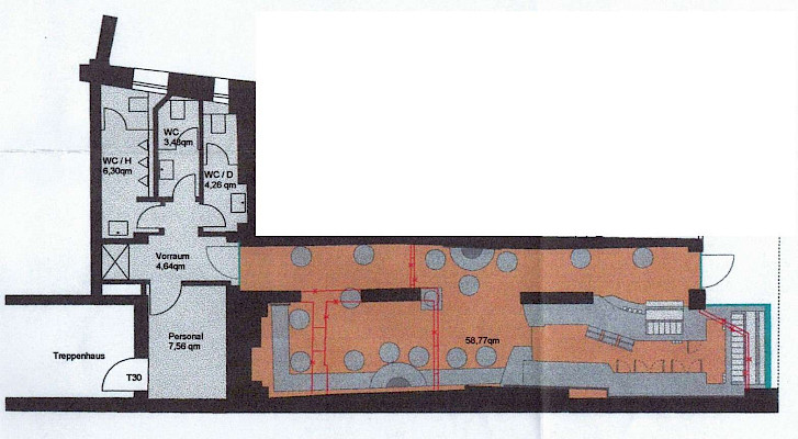
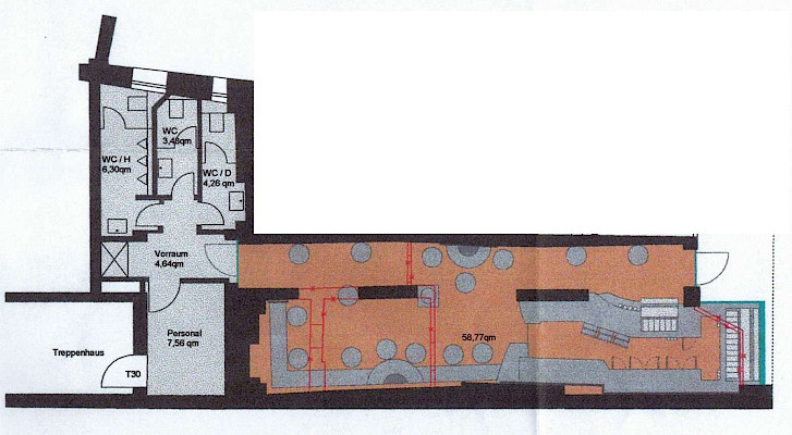
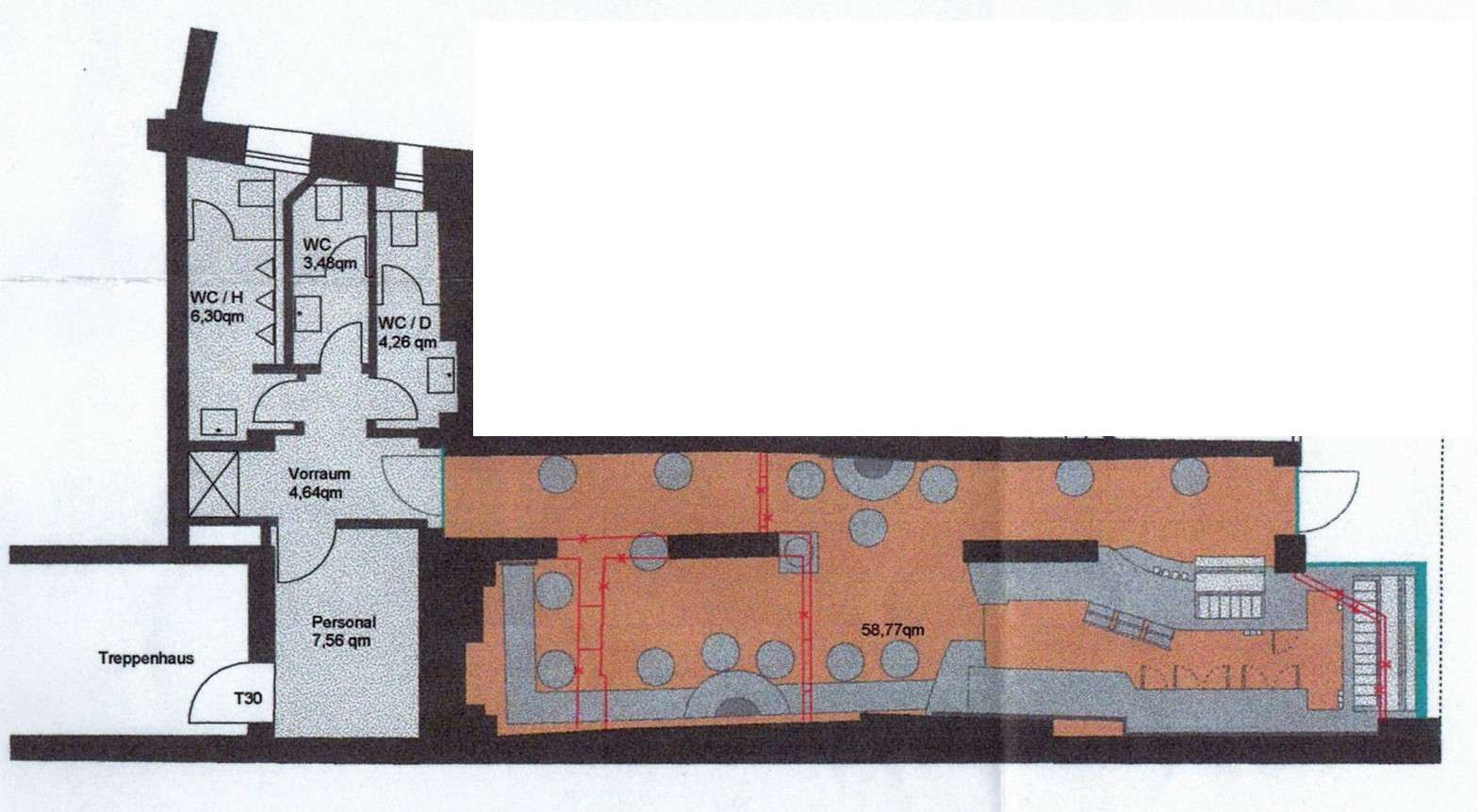
Grundrisse
Energieausweis
Es besteht bei dem Objekt keine Pflicht eines Energieausweises.
Objektbeschreibung
Bei diesem Angebot handelt es sich um eine äußerst attraktive Gewerbefläche in absoluter 1-A-Lage der Freisinger Innenstadt. Bereits beim Betreten empfängt Sie eine großzügige Diele mit vielfältigen Gestaltungsmöglichkeiten. Auf der linken Seite bietet sich ausreichend Platz für eine ansprechende Bestuhlung und einen einladenden Gästebereich. Geradeaus gelangen Sie in den Personalraum mit Küche sowie in einen angrenzenden Gang, der ideal als zusätzlicher Stauraum genutzt werden kann. Darüber hinaus stehen drei separate WC-Einheiten (Damen, Herren und Personal) zur Verfügung. Ein besonderes Highlight ist die zur Hauptstraße ausgerichtete Fensterfront, die sich teilweise öffnen lässt und sich damit hervorragend für einen attraktiven Straßenverkauf eignet. Ergänzend hierzu besteht – in Abstimmung mit der Stadt Freising – die Möglichkeit einer großzügigen Außenbestuhlung, die das Nutzungskonzept ideal abrundet. Die Gewerbefläche eignet sich hervorragend für ein Café oder eine Eisdiele mit Straßenverkauf sowie dem Angebot kleinerer Snacks. Für eine reine, vollumfängliche Gastronomienutzung ist die Einheit hingegen weniger geeignet.
Ausstattung
Die Einheit wurde kürzlich umfassend renoviert und präsentiert sich in einem sehr gepflegten, modernen Zustand. Im Zuge der Renovierungsarbeiten wurde ein neuer Fußboden verlegt, die Beleuchtung sowie die Elektrik größtenteils erneuert und sämtliche Wandflächen frisch gestrichen. Zusätzlich wurde an der straßenseitigen Außenwand ein Heizkörper installiert. Die übrigen Flächen sind nicht separat beheizt - beim Vormieter erfolgte die Temperierung über die Abwärme der eingesetzten Maschinen.
Lage
Die angebotene Gewerbefläche befindet sich in absoluter 1-A-Lage der Freisinger Innenstadt und damit in einem der gefragtesten und frequenzstärksten Bereiche der Stadt. Die Umgebung ist geprägt von einer attraktiven Mischung aus Einzelhandel, Gastronomie, Cafés und Dienstleistungsangeboten, die sowohl Einheimische als auch Besucher anzieht. Durch die zentrale Lage profitiert der Standort von einer konstant hohen Fußgängerfrequenz sowie einer hervorragenden Sichtbarkeit. Die kürzlich neugestaltete Innenstadt verleiht diesem Bereich ein modernes, urbanes Erscheinungsbild und steigert die Aufenthaltsqualität nachhaltig. Ein besonderes Highlight ist die unmittelbare Nähe zur offenen Moosach, die zusammen mit der möglichen Außenbestuhlung ein außergewöhnliches Ambiente schafft und den Standort deutlich von klassischen Innenstadtlagen abhebt. Die kürzlich erfolgte Neugestaltung der Freisinger Innenstadt, in Zusammenhang mit der Moosach-Eröffnung, trägt maßgeblich zur Belebung dieses Standortes bei und steigert die Attraktivität dieser Lage nochmals deutlich. Die Anbindung an den öffentlichen Nahverkehr ist ausgezeichnet - der Bahnhof Freising ist fußläufig erreichbar. Ergänzt wird dies durch eine gute Erreichbarkeit für Lieferverkehr sowie durch nahegelegene Parkmöglichkeiten. Diese Lage vereint urbane Lebendigkeit, hohe Passantenfrequenz und ein einzigartiges Umfeld – ideale Voraussetzungen für eine erfolgreiche gewerbliche Nutzung.









