Zuhause in Langenbach! Zeitgemäßes Neubau-Reiheneckhaus auf großem sonnigen Grundstück
859.000 €
153,5 m²
Schlafzimmer
Badezimmer
Wohnfläche
Grundstückfläche
Objektinformationen
| Objektnr.: | RO515 |
| Wohnfläche.: | 153,5 m² |
| Nutzfläche: | 46,7 m² |
| Grundstücksfläche: | 420,0 m² |
| Zimmer gesamt: | 5,5 |
| Schlafzimmer: | 3,0 |
| Badezimmer: | 2,0 |
| Stellplätze: | 2 |
| Etagen: | 4 |
| Heizungsart: | Zentralheizung |
| Baujahr: | 2026 |
| Zustand: | erstbezug |
| Verfügbar ab: | 2027 |
| Kaufpreis: | € 859.000,00 |
| Käuferprovision: | 2,38 % inkl. MwSt. |
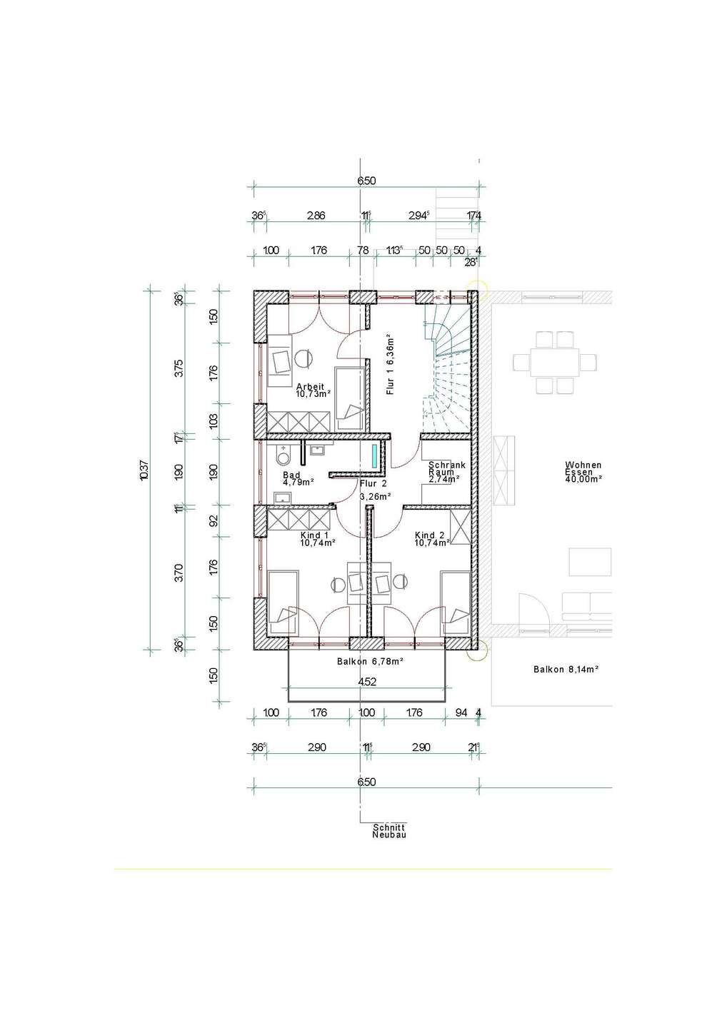
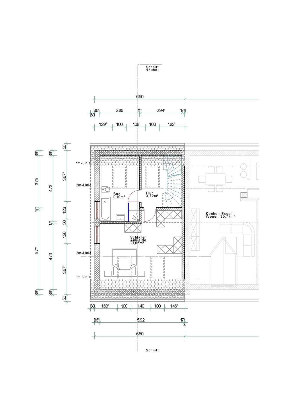
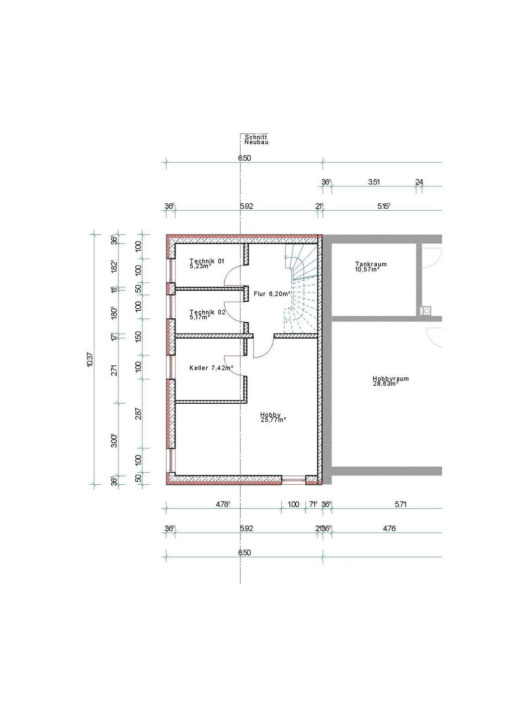
Grundrisse
Energieausweis
Es besteht bei dem Objekt keine Pflicht eines Energieausweises.
Objektbeschreibung
Das von uns exklusiv angebotene Neubau-Reiheneckhaus befindet sich im Ortskern von Langenbach. Empfangen werden Sie von einem geräumigen Flur, welcher alle Räume des Erdgeschosses erschließt. So finden Sie zu Ihrer rechten Seite die geräumige Garderobe mit ausreichend Platz für einen Einbauschrank. Angrenzend daran befindet sich das Gäste-WC mit Tageslicht. Zu Ihrer Mitte befindet sich das Herzstück des noch zu errichtenden Reiheneckhauses - der lichtdurchflutete Wohn- und Essbereich. Eine Küchenzeile in zeitgemäßer U-Form könnte hier ebenfalls Ihren Platz finden. Aufgrund der angenehmen Breite des Eckhauses bieten sich Ihnen im Erdgeschoss zahlreiche Entfaltungsmöglichkeiten. Das Obergeschoss bietet aufgrund seiner beiden Schlafzimmer sowie des Arbeitszimmers eine ebenfalls gelungene Raumaufteilung. Die beiden identischen Kinderzimmer haben einen Zugang auf den nach Süd-Westen ausgerichteten Balkon. Hier lassen sich die Tage entspannt mit Freunden und Familie ausklingen. Das Dachgeschoss wird vervollständigt mit einem weiteren Schlafzimmer inklusive Ankleide, einem Badezimmer mit WC, Waschbecken, Badewanne und Dusche sowie mit einem weitausladenden Flur. Dachflächenfenster versorgen die Räume mit wohligem Raumklima. Abgerundet wird das noch zu errichtende Reiheneckhaus mit einem Kellergeschoss. Hier finden Sie weitere Abstellmöglichkeiten für Ihr Hab und Gut.
Ausstattung
Das Haus wird vollunterkellert gebaut. Die Außenwände werden in 36,5 cm Ziegelsteinen gemauert. Als Heizung wird eine Luft-/ Wärmepumpe mit Solarunterstützung verbaut werden. Der Energiewert des Hauses wird sich vermutlich zwischen 30 und 50 Kw/h einfinden. Änderungen am Plan und der Baubeschreibung sind selbstverständlich möglich. Hierzu wird ggf. ein Protokoll erstellt bei dem Kosten und eventuelle Gutschriften gegeneinander aufgerechnet werden. Die Baubeschreibung und die Sonderwünsche werden Bestandteil des Kaufvertrages werden.
Lage
Die Gemeinde Langenbach liegt mittig zwischen der Kreisstadt Freising und der Stadt Moosburg an der Isar. Sämtliche Dinge des täglichen Bedarfs sind fußläufig in wenigen Minuten erreichbar. Langenbach verfügt über eine ausgezeichnete Verkehrsinfrastruktur. Der Bahnanschluss gehört zum MVV-Gebiet. Die BAB 92 ist schnell zu erreichen. Grundschule und Kitas sind im Ort vorhanden. Weiterführende Schulen befinden sich in Freising oder Moosburg. Selbstverständlich ist hier abschließend noch die Nähe zum Flughafen München zu erwähnen (in 20 min. erreicht) und selbstverständlich der hohe Freizeitwert der Gemeinde mit diversen Möglichkeiten des Sports und anderer Aktivitäten. Alles in allem findet man hier eine ruhige und familienfreundliche Umgebung vor.
Sonstiges
Im Kaufpreis enthalten sind zwei Stellplätze direkt am Haus mit den Nummern Nummern 7 und 8. Der Baubeginn des Reihenhauses ist kurzfristig, die Fertigstellung ist für 2027 geplant.










